Fáilte go dtí Siopa GEMA - do shaineolaí ar theicneolaíocht teasa, gréine agus sláintíochta ó 1991. Molaimid duit go pearsanta agus cuirimid réitigh theicniúla ar fáil a oibríonn i ndáiríre.
  • loingseoireachta go tapa

  • Cabhair agus comhairle saor in aisce

  • Ar oscailt 7 lá na seachtaine

Anhaltinerring 17, 39439 Güsten

A.B.S.  |  SKU: HP-FB18

Millíní silo LÁR COMHRÉIDH lena n-áirítear. fráma

Ainm: A.B.S. Silo- und Förderanlagen GmbH

Seoladh: Industriepark 100, 74706 Osterburken

Ríomhphost: info@abs-silos.de

Láithreán Gréasáin: https://abs-silos.de/

Déantóir Eorpach: Sea

Praghas gnáth 2.981,79 €
inkl. MwSt. Kostenloser Versand innerhalb Deutschland

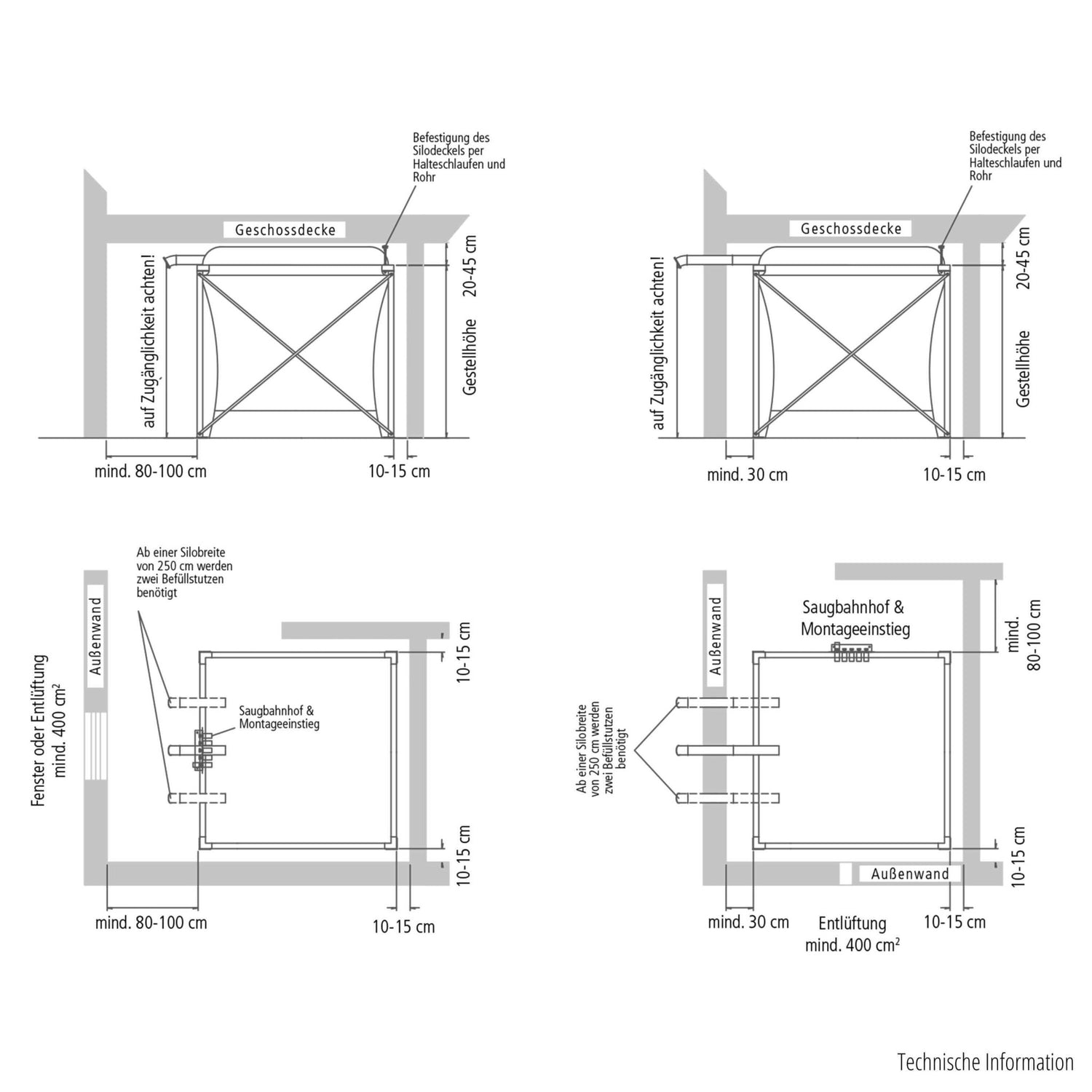
Toisí fráma
Airde an tseomra

Seachadadh agus loingseoireachta

Is é an t-am próiseála 1 lá oibre de ghnáth. Is é an t-am seachadta le haghaidh earraí pacáiste 1-3 lá oibre. Maidir le hearraí seolta lasta, is é 3-5 lá oibre an t-am seachadta. Tá na hamanna seachadta lasmuigh den Ghearmáin difriúil.

Beschreibung

Silo millíní le bun cothrom, lena n-áirítear fráma

A.B.S. Silo millíní bun cothrom - réiteach lánacmhainneachta ar phraghas tarraingteach - ní bhíonn sé níos fearr

ó A.B.S.

Leis an gcruth ciúb Urlár Cothrom Flexilo® (Uimhir Paitinne 10 2009 033 230) le A.B.S. Úsáidtear idir 80 agus 90% den spás stórála millíní adhmaid. Fágann sé seo gur féidir millíní adhmaid a stóráil go barrmhaith agus ar bhealach a shábhálann spás i mbeagnach aon seomra, fiú le huasteorainneacha ísle.

Buaicphointí an Silo millíní

  • Uasmhéid líonta: Is féidir suas le 90% den spás stórála millíní a úsáid.
  • Tionól éasca agus tapa
  • Sruthán draenála le haghaidh bainte de láimh mar chaighdeán
  • Is féidir naisc shúchán, rochtain suiteála, eastóscadh láimhe agus líne líonta a shuiteáil ar aon taobh de réir do shonraíochtaí.
  • Toisí saincheaptha do gach feidhmchlár

Raon feidhme seachadta Bonn Cothrom Flexilo® HP 18 lena n-áirítear fráma

  • Mála silo le balla tionchair fuaite isteach
  • Fráma cruach ghalbhánuithe mar chóras breiseán lena n-áirítear ábhar gléasta.
  • Córas líonta oiriúnach (líonadh taobh caighdeánach)
  • Áirítear: 5 tóireadóir súite, aonad lasctha láimhe agus píobáin súite istigh.
  • Struchtúr tacaíochta do chlúdach an tsilo (ní mór don chustaiméir an píopa a sholáthar)
  • Treoracha tionóil

Íocaíocht & Slándáil

Roghanna íocaíochta

  • American Express
  • Apple Pay
  • Bancontact
  • BLIK
  • EPS
  • Google Pay
  • iDEAL Wero
  • Klarna
  • Maestro
  • Mastercard
  • MobilePay
  • PayPal
  • Przelewy24
  • Shop Pay
  • Union Pay
  • Visa

Próiseáiltear d'fhaisnéis íocaíochta go slán. Ní stóraimid faisnéis cárta creidmheasa agus níl rochtain againn ar fhaisnéis do chárta creidmheasa.

Déan teagmháil linn